129 Malcolm X Boulevard #3 Brooklyn, NY 11221

UPDATED:
Key Details
Property Type Condo
Sub Type Condo
Listing Status Active
Purchase Type For Sale
Square Footage 1,163 sqft
Price per Sqft $858
Subdivision Bedford-Stuyvesant
MLS Listing ID RLS20010826
Style Walk-Up
Bedrooms 2
HOA Fees $529/mo
HOA Y/N Yes
Year Built 1931
Annual Tax Amount $4,644
Property Sub-Type Condo
Property Description
Outfitted in a historic brownstone on Malcolm X Boulevard, the building blends classic details with modern comfort. Thoughtful designs such as high ceilings, oversized windows, elegant kitchens and state-of-the-art climate control systems are all tucked inside the restored turn-of-the-century walls. Experience peace of mind with all-new electrical, plumbing, flooring, water main, sprinkler system and more.
Unlike most Brooklyn new development, this building stands out with high-end custom finishes and exceptional design by the renowned architecture firm AlexAllen Studio. Every detail has been thoughtfully crafted to create a space that feels tailored specifically to your lifestyle. With this level of quality and craftsmanship, you won't find a better value anywhere else on the market.
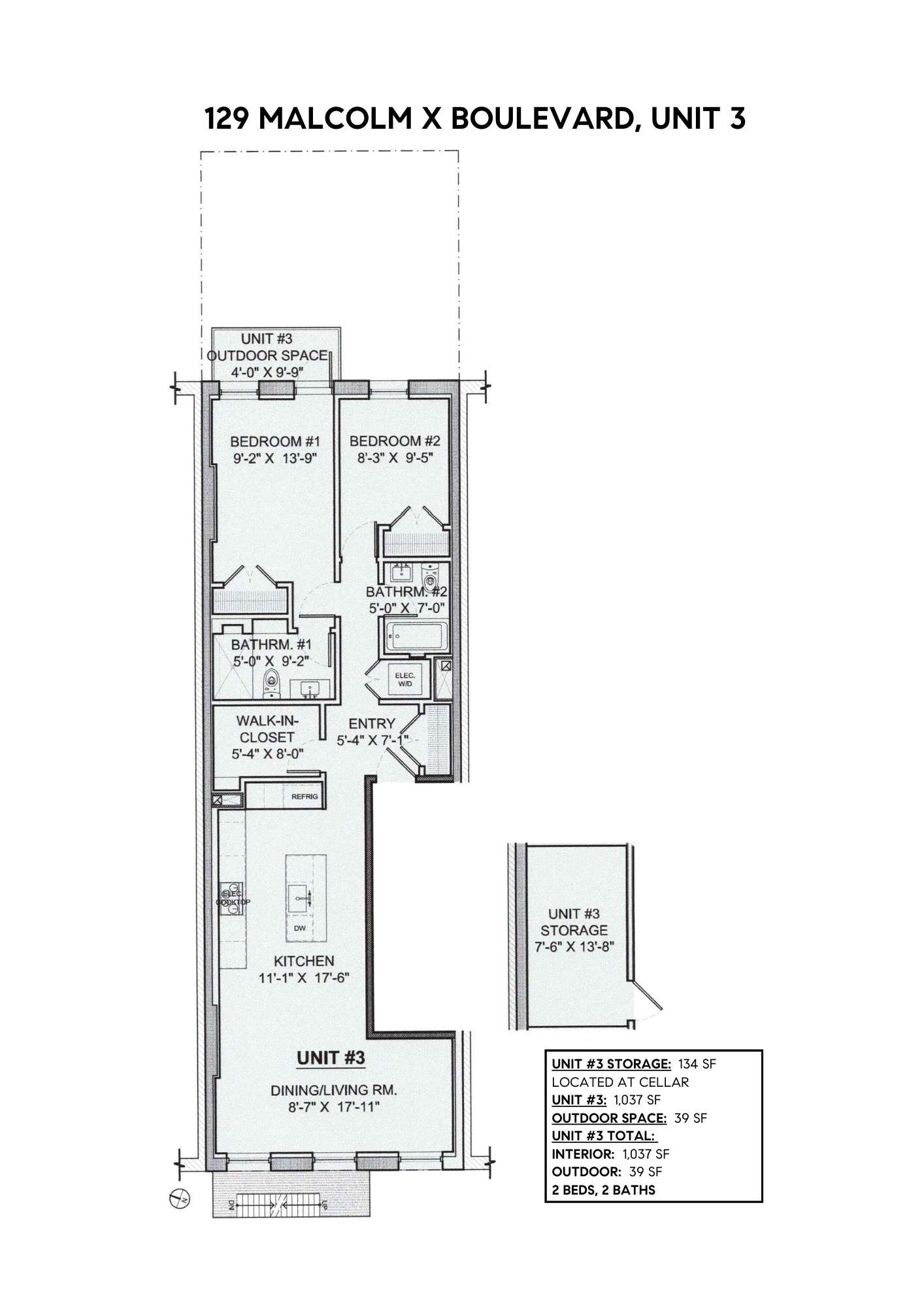
Unit #3 offers an expansive living space with 2 bedrooms, 2 full baths, and a home office, plus an additional 39 square-foot private balcony. Additionally, there is a 107SF private basement storage room accessible through the common hall.
Units feature functional and convenient elements such as bathrooms with heated limestone floors, generous storage, in-unit laundry, and high-efficiency heating and cooling. Design is never compromised with custom millwork and moldings, herringbone floors and triple-paned, tilt-and-turn windows custom made in Europe.
Located in the vibrant neighborhood of Bedford Stuyvesant, close to the Bushwick border. As the sun sets, restaurant and bar doors open: cocktails at Dynaco, Nashville-style fried chicken at Peaches Hot House, Neapolitan pizza at Saraghina. Sip on a natural wine at Winona's. Catch some jazz at the Sankofa Aban Bed & Breakfast, or an outdoor movie screened in one of Bed-Stuy's green spaces. Whatever you're craving, Bed-Stuy has something for everyone.
The nearby J train and multiple buses also offer quick and easy access to Manhattan and your other favorite Brooklyn neighborhoods.
With its prime location and modern amenities, 129 Malcolm X Blvd is a unique building and fantastic investment in the future.
Expected closings summer 2025.
THE COMPLETE OFFERING TERMS ARE IN AN OFFERING PLAN AVAILABLE FROM SPONSOR. FILE NO. CD24-0096. SPONSOR: ATELIER MALCOLM X LLC, 170 TILLARY STREET, SUITE 704, BROOKLYN, NY 11201
Location
Interior
Interior Features Crown Molding, Double Vanity, High Ceilings, Kitchen Island, Recessed Lighting, Soaking Tub, Walk-In Closet(s)
Heating Central
Cooling Central Air, Other
Flooring Hardwood
Furnishings Unfurnished
Fireplace No
Appliance Cooktop, Dishwasher, Range, Refrigerator, Range Hood, Stainless Steel Appliance(s)
Laundry In Unit, See Remarks
Exterior
Exterior Feature Private Outdoor Space Under 60 Sqft
View Y/N No
Private Pool No
Building
Dwelling Type Multi Family,Quadruplex,Townhouse
Story 4
New Construction No
Others
Tax ID 01632-0004
Ownership Condominium
Monthly Total Fees $916
Special Listing Condition Standard
Pets Allowed Building No, No




